€
EUR
Properties
Who are we
Want to sell
Recruitment
News
Contacts
More
Properties
Who are we
Want to sell
Recruitment
News
Contacts
0
0
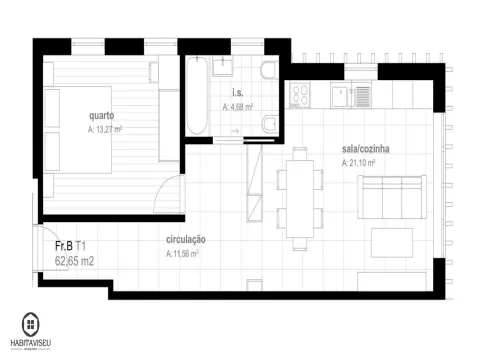
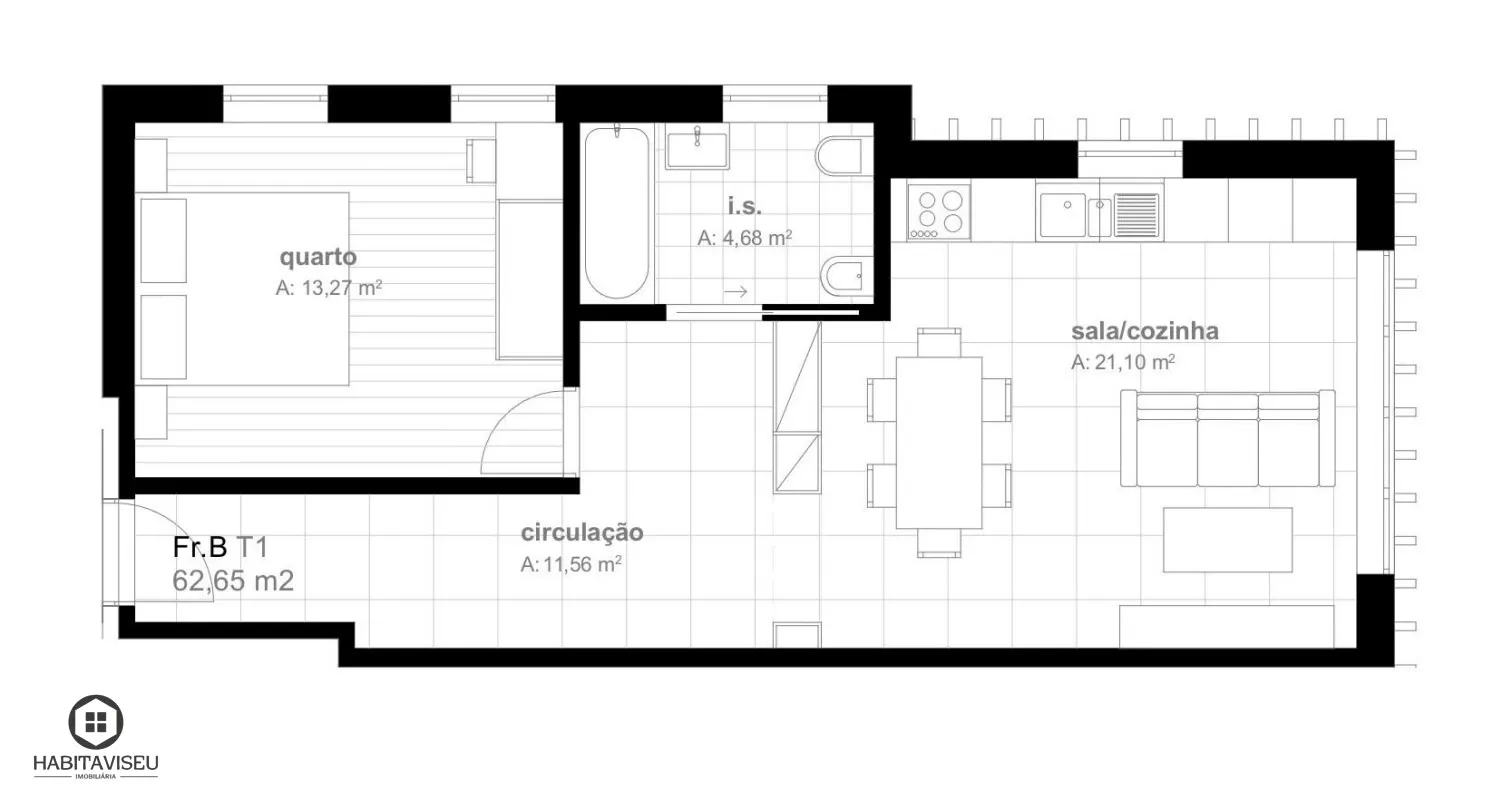
Flat T1
Viseu, Viseu
Back
\
Flat T1 - Viseu, Viseu
Share Property
Facebook
X
Pinterest
WhatsApp
Copy link
Link copiado
Print sheet
Send property to a friend
Insert a name
Insert an email
Enter a valid email address
Insert a name
Insert an email
Enter a valid email address
I have read and agree to the terms and conditions set forth.
Know more »
To finish this operation you should read and agree with our conditions.
Required fields *
Send
Photos
Seguir imóvel
Seguir imóvel
Receba um alerta quando existir uma Baixa de Preço
Name
Insira o seu Nome
E-mail
Enter your email
Enter a valid email address
Li e aceito a
Privacy Policy
To finish this operation you should read and agree with our conditions.
Insert the code from the image
Code
Send
Flat T1, Viseu, Viseu
255.000 €
Ref:
3346-B
1
1
1
51 m²
75,35 m²
1-Bedroom Apartment Under Construction in the Center of Viseu
A Unique Opportunity to Live in Comfort and Convenience!
We present this
1-bedroom apartment under construction
, located in an exceptional multi-family building. Situated on the
1st floor
, it features
modern, high-quality finishes
designed to provide a unique living experience, combining
comfort, functionality, and design
.
Apartment Features:
Entrance Hall and Corridor
Living Room and Kitchen:
Spacious and bright areas. The kitchen is equipped with
modern cabinetry
and a
Silestone countertop
, including high-quality appliances such as an
induction hob, extractor fan, electric oven, microwave
, and
dishwasher
.
Bedroom:
One bedroom with a
built-in wardrobe
, offering ample storage and comfort. The
aluminum window frames with thermal break
ensure excellent
acoustic and thermal insulation
.
Bathroom:
Finished with
ceramic tiles up to the ceiling
and high-quality sanitary ware from
Sanindusa
, with built-in mixer taps for a sleek, modern finish.
High-Quality Finishes and Equipment:
Climate Control:
Daikin air conditioning system for heating and cooling, ensuring year-round comfort. The apartment also features a
high-efficiency heat pump
for domestic hot water.
Flooring:
Floating floors in the living room and bedroom; ceramic flooring in the kitchen and bathroom.
Lighting:
Recessed ceiling lights and
indirect cove lighting
, creating a cozy and modern atmosphere.
Other Features:
Security:
Reinforced
high-security entrance door
(DIERRE type), ensuring maximum protection for residents.
Elevator:
The building is served by a
Schindler elevator
, providing easy access to all floors.
Garage:
Includes
underground and outdoor parking spaces
, with one space adapted for people with reduced mobility.
Location:
This apartment is in a
prime area of Viseu
, with easy access to all key points of the city—
hospitals, pharmacies, universities, supermarkets, municipal library, citizen service center, shopping mall
, and more. Its proximity to
Viseu City Hall
and other urban amenities such as
public transport, schools, and services
makes it ideal for those seeking
quality city living in the heart of Viseu
.
An excellent opportunity for anyone wishing to live with
comfort and practicality
in a
prestigious building with modern finishes
.
Whether for
personal residence or investment
, don’t miss this opportunity.
Contact us
for more information or to schedule your visit.
Property Type
Flat
Typology
1 Room
Objective
Sell
Condition
Under Construction
Price
255.000 €
Year of Construction
2025
Country
Portugal
District
Viseu
County
Viseu
Parish
Viseu
Zone
N/A
Márcio Cardoso
+351 938 245 056
Chamada para a rede móvel nacional
I want to be contacted
Date
Time
Name
Insert a name
E-mail
Insert an email
Enter a valid email address
Contact
Enter your phone contact
Message
I request more information, without any commitment, about the property 3346-B
I have read and agree to the terms and conditions set forth.
Privacy Policy
To finish this operation you should read and agree with our conditions.
Code
Insert the code shown in the image.
Send
General Features
General
Rooms
Rooms
Area
Floor
Walls
Ceilings
Comments
Surroundings
Facilities
Domotic System (Home automation)
Renewable Energy
See too
Viseu, Viseu
310.000 €
Flat T2
310.000 €
Flat T2
Viseu, Viseu
2
1
1
90,49 m²
A. Bruta
65 m²
A. Useful
Contactar
Viseu, Viseu
305.000 €
Flat T2
305.000 €
Flat T2
Viseu, Viseu
2
1
1
89 m²
A. Bruta
63 m²
A. Useful
Contactar
Viseu, Viseu
265.000 €
Flat T1
265.000 €
Flat T1
Viseu, Viseu
1
1
1
87 m²
A. Bruta
49 m²
A. Useful
Contactar
More properties +
We are available to help you
I want to be contacted
Date
Time
Name
Insert a name
E-mail
Insert an email
Enter a valid email address
Contact
Insert your contact details
Message
Li e aceito a
Privacy Policy
To finish this operation you should read and agree with our conditions.
Code
Insert the code shown in the image.
Send
O que é a pesquisa responsável
Esta pesquisa permite obter resultados mais ajustados à sua disponibilidade financeira.